 Disponível por encomenda
Disponível por encomenda
34 701

M044

3

6x19

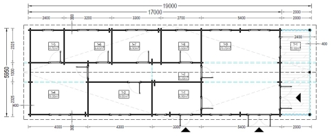
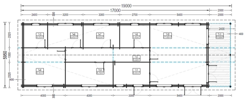
114 m2

5 - 6
DESCRIÇÃO
A casa modelo BOSTON tem uma aconchegante varanda de 12 m² para jantares especiais de fim de semana com a família. Uma sala de 30 m² que garante total liberdade de expressão para criar a principal área de descanso da casa. 6 divisões mais pequenas que podem servir a muitos propósitos: como um espaço de trabalho funcional, quarto, armazenamento, casa de banho grande e muito mais. Uma casa de banho independente para maior conforto. A nossa casa de madeira BOSTON, com 114 m² de espaço interior, pode ser uma excelente escolha para quem valoriza o espaço e o máximo conforto. Esteja à vontade para organizar a disposição interna como quiser: monte vários quartos aconchegantes, um espaço de trabalho, um vestiário, um depósito e qualquer outra coisa que possa precisar numa casa ou residência de férias funcional.
O que está incluído no nosso Orçamento?
- Pack com toda a estrutura em madeira da casa (Piso, paredes, teto de madeira, portas e janelas) 
 -  Portas e janelas de vidro duplo, 
 -  Chão em madeira, 
  -  Ferragens.
O que NÃO está incluído no nosso Orçamento? (Poderá ser orçamentado à parte)
- Eletrodomésticos, 
- Eletricidade e Canalizações, 
- Laje de Betão,
- Projeto de Arquitetura,
- Projeto de Especialidades,
- Licenças camarárias,
- Transporte,
- Montagem,
- Qualquer intervenção necessária no terreno, ao nivel de terraplanagem, instalação de serviços ou nivelação.
 
             
 

















