35 586
M036
3
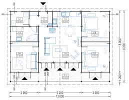
13,00x9,20
120 m2
5 - 6
DESCRIÇÃO
A casa modelo RIVIERA contém 3 quartos com dimensões perfeitas que lhe permitirão receber confortavelmente os seus convidados sem perder a sua privacidade. Uma sala de estar espaçosa formada por uma cozinha que oferece muito espaço para cozinhar enquanto desfruta da melhor companhia. Grandes janelas laterais quase até ao chão e portas com acesso direto ao terraço. Um terraço coberto de 20 m² para desfrutar de churrascos em família ou pequenas comemorações. Uma casa de banho independente. Desfrute de uma experiência de vida natural, elegante e ecológica nesta casa de madeira clássica. Este modelo exclusivo oferece tudo o que precisa para se tornar a casa principal da sua família (se bem isolada), a residência secundária ou a casa de férias dos seus sonhos. Convide os seus amigos e familiares e passem momentos inesquecíveis juntos. Todas as divisões desta bela casa estarão repletos de luz natural - encha-os de alegria e memórias que durarão a vida toda.
O que está incluído no nosso Orçamento?
- Pack com toda a estrutura em madeira da casa (Piso, paredes, teto de madeira, portas e janelas)
- Portas e janelas de vidro duplo,
- Chão em madeira,
- Ferragens.
O que NÃO está incluído no nosso Orçamento? (Poderá ser orçamentado à parte)
- Eletrodomésticos,
- Eletricidade e Canalizações,
- Laje de Betão,
- Projeto de Arquitetura,
- Projeto de Especialidades,
- Licenças camarárias,
- Transporte,
- Montagem,
- Qualquer intervenção necessária no terreno, ao nivel de terraplanagem, instalação de serviços ou nivelação.











