54 943
M034
3
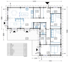
14,5x8,95
129 m2
5 - 6
DESCRIÇÃO
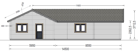
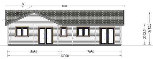
A casa modelo PAULA contém uma sala de estar espaçosa com cozinha aberta que se tornará imediatamente o centro das atenções e reunirá toda a família. 3 quartos independentes que garantirão espaço de descanso suficiente para todos os membros da família. Um magnífico pátio interno de 35 m² (elemento extra e não incluído no preço) onde poderá desfrutar das suas refeições em família e se quiser passar mais tempo ao ar livre. Duas casas de banho funcionais que garantem o máximo conforto. A nossa casa de madeira isolada PAULA oferece um espaço amplo e cheio de luz natural graças às suas várias janelas e portas grandes. Experimente a flexibilidade e a funcionalidade deste espaço: planeie e projete a área interna da forma que mais gosta. A distribuição da casa num andar garante a máxima funcionalidade e conforto, principalmente para famílias com crianças pequenas e idosos.
O que está incluído no nosso Orçamento?
- Pack com toda a estrutura em madeira da casa (Piso, paredes, teto de madeira, portas e janelas)
- Portas e janelas de vidro duplo,
- Chão em madeira,
- Ferragens.
O que NÃO está incluído no nosso Orçamento? (Poderá ser orçamentado à parte)
- Eletrodomésticos,
- Eletricidade e Canalizações,
- Laje de Betão,
- Projeto de Arquitetura,
- Projeto de Especialidades,
- Licenças camarárias,
- Transporte,
- Montagem,
- Qualquer intervenção necessária no terreno, ao nivel de terraplanagem, instalação de serviços ou nivelação.











