59 539
M033
5
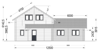
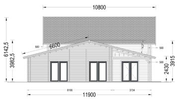
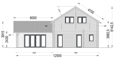
12,5x11,90
180 m2
5 - 6
DESCRIÇÃO
A casa modelo DARLA contém 5 quartos que oferecem conforto para si e para os seus amigos e espaços comuns e separados. Um armazém para guardar os seus eletrodomésticos e outros itens. Uma sala de estar e cozinha em plano aberto, criando mais espaço para ideias interessantes de design de interiores. Uma entrada coberta para a sua segurança e conforto. Um terraço que aumenta a sua área de estar em 30 m². A DARLA é uma casa de madeira espaçosa que pode acomodar facilmente a sua família e amigos para estadias temporárias e permanentes. Oferece um amplo espaço para que todos possam partilhar refeições, aproveitar a sala de estar juntos e ao final do dia todos podem dormir tranquilos em quartos separados. Vai adorar o design elegante desta casa de estilo clássico e o seu terraço, que lhe dará ainda mais ideias para desfrutar do seu próprio oásis. Se procura uma casa que o ajude a relaxar e a sentir-se confortável em organizar refeições em companhia, a DARLA é a nossa melhor recomendação!
O que está incluído no nosso Orçamento?
- Pack com toda a estrutura em madeira da casa (Piso, paredes, teto de madeira, portas e janelas)
- Portas e janelas de vidro duplo,
- Chão em madeira,
- Ferragens.
O que NÃO está incluído no nosso Orçamento? (Poderá ser orçamentado à parte)
- Eletrodomésticos,
- Eletricidade e Canalizações,
- Laje de Betão,
- Projeto de Arquitetura,
- Projeto de Especialidades,
- Licenças camarárias,
- Transporte,
- Montagem,
- Qualquer intervenção necessária no terreno, ao nivel de terraplanagem, instalação de serviços ou nivelação.














