9 255
M003
1
4x5
20 m2
5 - 6
DESCRIÇÃO
A casa modelo AVIGNON F é uma estrutura de dois andares permite separar confortavelmente as áreas de estar e dormir. Um loft espaçoso oferece uma área tranquila e imperturbável para descansar à noite. Inúmeras janelas permitem a entrada de muita luz natural e também complementam o design geral da casa. Uma casa de banho independente que garante o seu conforto residencial. A nossa casa de madeira AVIGNON é um dos poucos modelos mais compactos da nossa gama. Possui uma disposição de dois andares com um loft, o que permitirá usar com eficiência todo o espaço e separar confortavelmente as áreas de lazer e descanso. Caso a isole, esta charmosa casa também pode servir como uma residência individual ou um lugar elegante onde um casal pode viver de forma ecológica em qualquer mês do ano.
O que está incluído no nosso Orçamento?
- Pack com toda a estrutura em madeira da casa (Piso, paredes, teto de madeira, portas e janelas)
- Portas e janelas de vidro duplo,
- Chão em madeira,
- Ferragens.
O que NÃO está incluído no nosso Orçamento? (Poderá ser orçamentado à parte)
- Eletrodomésticos,
- Eletricidade e Canalizações,
- Laje de Betão,
- Projeto de Arquitetura,
- Projeto de Especialidades,
- Licenças camarárias,
- Transporte,
- Montagem,
- Qualquer intervenção necessária no terreno, ao nivel de terraplanagem, instalação de serviços ou nivelação.
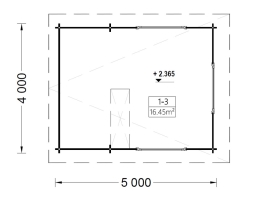
CARACTERIÍSTICAS
| Material |
|---|
| Pinho nórdico natural / abeto escandinavo certificado |
| Porta (largura x altura) |
| 1* 85 cm x 192 cm; 1* 70 cm x 192 cm |
| Área do telhado |
| 38 m² |
| Superficie |
| 20 m² |
| Janela (largura x altura) |
| 3* 138 cm x 105 cm; 1* 70 cm x 105 cm; 2* 50 cm x 50 cm |
| Altura dos beirais |
| 398,5 cm |
| Altura do cume |
| 438,5 cm |
| Telhado |
| Placas de 19 - 20mm de espessura |
| Beiral do telhado |
| 50 cm |
| Chão |
| Chão de 19 - 20mm, macho e fêmea (incluído) |
| Paredes |
| 44 mm |
| Tratamento da madeira |
| Tratamento para madeira disponível como opção |
| Inclinação do telhado |
| 5° |
| Número de divisões |
| 2 |
| Medidas interiores (largura x profundidade) |
| 371 x 471 cm |
| Material da cobertura do telhado |
| Material para cobertura do telhado disponível como opção |
| Medidas exteriores (largura x profundidade) |
| 400 x 500 cm |












